2024 Clayton Mobile Home for Sale 27150 Shadel Rd #19, Menifee, CA 92586
Off Market
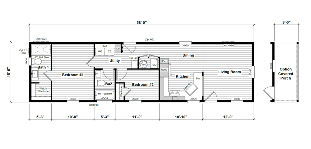
- Bel Air Estates 55+ Community
- 2 Bedrooms
- 2 Bathrooms
- 15ft x 62ft
- 930 sqft
2024 Clayton Mobile Home for Sale 27150 Shadel Rd #19, Menifee, CA 92586
Off Market
- Bel Air Estates 55+ Community
- 2 Bedrooms
- 2 Bathrooms
- 15ft x 62ft
- 930 sqft
- Price:
- Rooms: 2 bed(s), 2 bath(s)
- Dimension: 15 ft x 62 ft
- Home Area: 930 sqft
- Condition: New Home
- Location: Located in a mobile home park
- Model: 2024 Clayton
- Community Type: 55 And Over Community
- Property ID: 6737874
- Bel Air Estates ID: 154282
- Posted On: Sep 27, 2024
- Updated On: Mar 31, 2026
Amenities
- Cooling : Central Air
Mobile Home Description
Beautiful brand new home in a 55+ community Clayton Home Harmony Series 2 Bedroom 2 Bath single wide with porch, Serial #PER040859CAAC, Quartz island countertop, farmhouse stainless steel kitchen sink, full tile kitchen backsplash, ring video doorbell, Samsung stainless steel appliances,